La mejor solución
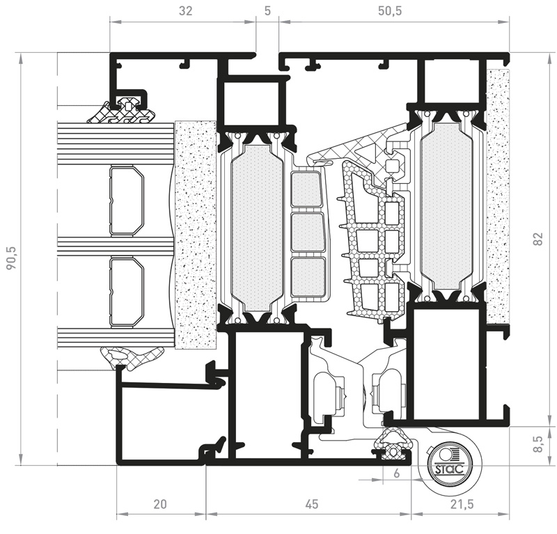
- Marco de 75 mm.
- Hoja de 90,5 mm.
- Canal 16
- Marcos para mercado nacional y francés
- Estética de líneas rectas y coplanar al exterior
- Opción de espumas de poliolefina reticulada
- Complemento de junta central en EDPM celular
- Aislamiento reforzado mediante poliamidas tubulares y espumas en cámaras de poliamidas
- Dobles escuadras de inyección o extrusión tanto en marcos como hojas
- Mismas escuadras interiores y exteriores para marcos y hojas
- Paso de bisagra de 5 mm
- Certificación Passivhaus Institut para la categoría 4 Warm-temperate (cálido-templado)
Características técnicas

Tramitancia térmica
Uw ≥ 0,8 W/m2K Valor calculado según norma EN-ISO 10077-1 para ventana balconera de 2 hojas de 1480 x 2180 mm con vidrio triple bajo emisivo. Ug =0,5 W/m2K

Sección
Serie 84 RP
Longitud de poliamida
42 mm
Acristalamiento
≤ 69 mm
Espesor medio teórico
1,5 mm
Aislamiento acústico
Rw ≤ 47dB
Peso máximo por hoja
160 kg
Aperturas
- Apertura interior: Practicable oscilobatiente, abatible, oscilo-paralela y plegable - Apertura exterior: Practicable y proyectante.
Acabados
Posibilididad bicolor Efecto madera Lacado colores Anodizado
Banco de ensayo
Permeabilidad al aire: CLASE 4 UNE-EN 12207 Estanquidad al agua: E2100 UNE-EN 12208 Resistencia al viento: C5 UNE-EN 12210 Ensayo realizado sobre una ventana de dos hojas practicables de 1230 x 1480 mm de canal 16.